








NEVŞEHİR ÜRGÜP MÜZESİ
- Proje Yeri: Ürgüp, Nevşehir
- Proje Tarihi: 2015
- Toplam İnşaat Alanı: 1,283.8 m²
- İşveren: T.C. Kültür Ve Turizm Bakanlığı – Kültür Varlıkları ve Müzeler Genel Müdürlüğü, Kayseri Rölöve ve Anıtlar Müdürlüğü
- Mimari Proje: Hazan Mimarlık
- Statik Projesi: Mimar Sinan Mühendislik - Sabri Kuşçu
- Mekanik Projesi: MTD Mühendislik - Abdullah Öcal
- Elektrik Projesi: ENB Mühendislik - Birkan Yüksek
- Peyzaj Projesi: Promim Proje - Selami Demiralp
- Teşhir - Tanzim Projesi: Teati Mimarlık - Gizem Erkaya, Betül Koç
PROJE METNİ
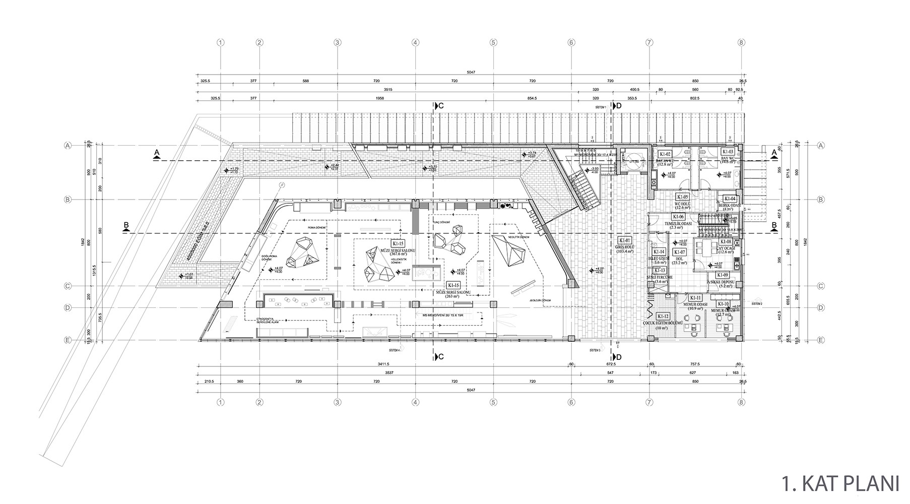
Nevşehir Ürgüp Müzesi bölgedeki kamu yapıları arasında merkezi bir konuma sahip, Mehmet Akif Ersoy Parkı’na ait arazi içerisinde yer almaktadır. Mevcut park alanının aktif kullanıma sahip bir mevkide olmasına karşın mevcut müze ve turist informasyon binalarının park ile mekânsal bütünlüğünün güçlendirilmesi gerekliliği projenin şekillenmesindeki temel unsurlardan biri olmuştur. Proje kapsamında önerilen yapı bir ‘Saçak’ yapıdır. Yapının zemini boşaltılarak bina bir saçağa dönüştürülmüştür. Bu saçak eklenti bir saçak elemanı değil, binanın kendisidir. Yapının fuayesine dönüşen parkın enerjisi binayı, binanın enerjisi ise parkı beslemektedir.
NEVŞEHİR ÜRGÜP MÜZESİ
- Proje Yeri: Ürgüp, Nevşehir
- Proje Tarihi: 2015
- Toplam İnşaat Alanı: 1,283.8 m²
- İşveren: T.C. Kültür Ve Turizm Bakanlığı – Kültür Varlıkları ve Müzeler Genel Müdürlüğü, Kayseri Rölöve ve Anıtlar Müdürlüğü
- Mimari Proje: Hazan Mimarlık
- Statik Projesi: Mimar Sinan Mühendislik - Sabri Kuşçu
- Mekanik Projesi: MTD Mühendislik - Abdullah Öcal
- Elektrik Projesi: ENB Mühendislik - Birkan Yüksek
- Peyzaj Projesi: Promim Proje - Selami Demiralp
- Teşhir - Tanzim Projesi: Teati Mimarlık - Gizem Erkaya, Betül Koç
PROJE METNİ
Nevşehir Ürgüp Müzesi bölgedeki kamu yapıları arasında merkezi bir konuma sahip, Mehmet Akif Ersoy Parkı’na ait arazi içerisinde yer almaktadır. Mevcut park alanının aktif kullanıma sahip bir mevkide olmasına karşın mevcut müze ve turist informasyon binalarının park ile mekânsal bütünlüğünün güçlendirilmesi gerekliliği projenin şekillenmesindeki temel unsurlardan biri olmuştur. Proje kapsamında önerilen yapı bir ‘Saçak’ yapıdır. Yapının zemini boşaltılarak bina bir saçağa dönüştürülmüştür. Bu saçak eklenti bir saçak elemanı değil, binanın kendisidir. Yapının fuayesine dönüşen parkın enerjisi binayı, binanın enerjisi ise parkı beslemektedir.
NEVŞEHİR ÜRGÜP MÜZESİ
- Proje Yeri: Ürgüp, Nevşehir
- Proje Tarihi: 2015
- Toplam İnşaat Alanı: 1,283.8 m²
- İşveren: T.C. Kültür Ve Turizm Bakanlığı – Kültür Varlıkları ve Müzeler Genel Müdürlüğü, Kayseri Rölöve ve Anıtlar Müdürlüğü
- Mimari Proje: Hazan Mimarlık
- Statik Projesi: Mimar Sinan Mühendislik - Sabri Kuşçu
- Mekanik Projesi: MTD Mühendislik - Abdullah Öcal
- Elektrik Projesi: ENB Mühendislik - Birkan Yüksek
- Peyzaj Projesi: Promim Proje - Selami Demiralp
- Teşhir - Tanzim Projesi: Teati Mimarlık - Gizem Erkaya, Betül Koç
PROJE METNİ
Nevşehir Ürgüp Müzesi bölgedeki kamu yapıları arasında merkezi bir konuma sahip, Mehmet Akif Ersoy Parkı’na ait arazi içerisinde yer almaktadır. Mevcut park alanının aktif kullanıma sahip bir mevkide olmasına karşın mevcut müze ve turist informasyon binalarının park ile mekânsal bütünlüğünün güçlendirilmesi gerekliliği projenin şekillenmesindeki temel unsurlardan biri olmuştur. Proje kapsamında önerilen yapı bir ‘Saçak’ yapıdır. Yapının zemini boşaltılarak bina bir saçağa dönüştürülmüştür. Bu saçak eklenti bir saçak elemanı değil, binanın kendisidir. Yapının fuayesine dönüşen parkın enerjisi binayı, binanın enerjisi ise parkı beslemektedir.
NEVŞEHİR ÜRGÜP MÜZESİ
- Proje Yeri: Ürgüp, Nevşehir
- Proje Tarihi: 2015
- Toplam İnşaat Alanı: 1,283.8 m²
- İşveren: T.C. Kültür Ve Turizm Bakanlığı – Kültür Varlıkları ve Müzeler Genel Müdürlüğü, Kayseri Rölöve ve Anıtlar Müdürlüğü
- Mimari Proje: Hazan Mimarlık
- Statik Projesi: Mimar Sinan Mühendislik - Sabri Kuşçu
- Mekanik Projesi: MTD Mühendislik - Abdullah Öcal
- Elektrik Projesi: ENB Mühendislik - Birkan Yüksek
- Peyzaj Projesi: Promim Proje - Selami Demiralp
- Teşhir - Tanzim Projesi: Teati Mimarlık - Gizem Erkaya, Betül Koç
PROJE METNİ
Nevşehir Ürgüp Müzesi bölgedeki kamu yapıları arasında merkezi bir konuma sahip, Mehmet Akif Ersoy Parkı’na ait arazi içerisinde yer almaktadır. Mevcut park alanının aktif kullanıma sahip bir mevkide olmasına karşın mevcut müze ve turist informasyon binalarının park ile mekânsal bütünlüğünün güçlendirilmesi gerekliliği projenin şekillenmesindeki temel unsurlardan biri olmuştur. Proje kapsamında önerilen yapı bir ‘Saçak’ yapıdır. Yapının zemini boşaltılarak bina bir saçağa dönüştürülmüştür. Bu saçak eklenti bir saçak elemanı değil, binanın kendisidir. Yapının fuayesine dönüşen parkın enerjisi binayı, binanın enerjisi ise parkı beslemektedir.
NEVŞEHİR ÜRGÜP MÜZESİ
- Proje Yeri: Ürgüp, Nevşehir
- Proje Tarihi: 2015
- Toplam İnşaat Alanı: 1,283.8 m²
- İşveren: T.C. Kültür Ve Turizm Bakanlığı – Kültür Varlıkları ve Müzeler Genel Müdürlüğü, Kayseri Rölöve ve Anıtlar Müdürlüğü
- Mimari Proje: Hazan Mimarlık
- Statik Projesi: Mimar Sinan Mühendislik - Sabri Kuşçu
- Mekanik Projesi: MTD Mühendislik - Abdullah Öcal
- Elektrik Projesi: ENB Mühendislik - Birkan Yüksek
- Peyzaj Projesi: Promim Proje - Selami Demiralp
- Teşhir - Tanzim Projesi: Teati Mimarlık - Gizem Erkaya, Betül Koç
PROJE METNİ
Nevşehir Ürgüp Müzesi bölgedeki kamu yapıları arasında merkezi bir konuma sahip, Mehmet Akif Ersoy Parkı’na ait arazi içerisinde yer almaktadır. Mevcut park alanının aktif kullanıma sahip bir mevkide olmasına karşın mevcut müze ve turist informasyon binalarının park ile mekânsal bütünlüğünün güçlendirilmesi gerekliliği projenin şekillenmesindeki temel unsurlardan biri olmuştur. Proje kapsamında önerilen yapı bir ‘Saçak’ yapıdır. Yapının zemini boşaltılarak bina bir saçağa dönüştürülmüştür. Bu saçak eklenti bir saçak elemanı değil, binanın kendisidir. Yapının fuayesine dönüşen parkın enerjisi binayı, binanın enerjisi ise parkı beslemektedir.
NEVŞEHİR ÜRGÜP MÜZESİ
- Proje Yeri: Ürgüp, Nevşehir
- Proje Tarihi: 2015
- Toplam İnşaat Alanı: 1,283.8 m²
- İşveren: T.C. Kültür Ve Turizm Bakanlığı – Kültür Varlıkları ve Müzeler Genel Müdürlüğü, Kayseri Rölöve ve Anıtlar Müdürlüğü
- Mimari Proje: Hazan Mimarlık
- Statik Projesi: Mimar Sinan Mühendislik - Sabri Kuşçu
- Mekanik Projesi: MTD Mühendislik - Abdullah Öcal
- Elektrik Projesi: ENB Mühendislik - Birkan Yüksek
- Peyzaj Projesi: Promim Proje - Selami Demiralp
- Teşhir - Tanzim Projesi: Teati Mimarlık - Gizem Erkaya, Betül Koç
PROJE METNİ
Nevşehir Ürgüp Müzesi bölgedeki kamu yapıları arasında merkezi bir konuma sahip, Mehmet Akif Ersoy Parkı’na ait arazi içerisinde yer almaktadır. Mevcut park alanının aktif kullanıma sahip bir mevkide olmasına karşın mevcut müze ve turist informasyon binalarının park ile mekânsal bütünlüğünün güçlendirilmesi gerekliliği projenin şekillenmesindeki temel unsurlardan biri olmuştur. Proje kapsamında önerilen yapı bir ‘Saçak’ yapıdır. Yapının zemini boşaltılarak bina bir saçağa dönüştürülmüştür. Bu saçak eklenti bir saçak elemanı değil, binanın kendisidir. Yapının fuayesine dönüşen parkın enerjisi binayı, binanın enerjisi ise parkı beslemektedir.
NEVŞEHİR ÜRGÜP MÜZESİ
- Proje Yeri: Ürgüp, Nevşehir
- Proje Tarihi: 2015
- Toplam İnşaat Alanı: 1,283.8 m²
- İşveren: T.C. Kültür Ve Turizm Bakanlığı – Kültür Varlıkları ve Müzeler Genel Müdürlüğü, Kayseri Rölöve ve Anıtlar Müdürlüğü
- Mimari Proje: Hazan Mimarlık
- Statik Projesi: Mimar Sinan Mühendislik - Sabri Kuşçu
- Mekanik Projesi: MTD Mühendislik - Abdullah Öcal
- Elektrik Projesi: ENB Mühendislik - Birkan Yüksek
- Peyzaj Projesi: Promim Proje - Selami Demiralp
- Teşhir - Tanzim Projesi: Teati Mimarlık - Gizem Erkaya, Betül Koç
PROJE METNİ
Nevşehir Ürgüp Müzesi bölgedeki kamu yapıları arasında merkezi bir konuma sahip, Mehmet Akif Ersoy Parkı’na ait arazi içerisinde yer almaktadır. Mevcut park alanının aktif kullanıma sahip bir mevkide olmasına karşın mevcut müze ve turist informasyon binalarının park ile mekânsal bütünlüğünün güçlendirilmesi gerekliliği projenin şekillenmesindeki temel unsurlardan biri olmuştur. Proje kapsamında önerilen yapı bir ‘Saçak’ yapıdır. Yapının zemini boşaltılarak bina bir saçağa dönüştürülmüştür. Bu saçak eklenti bir saçak elemanı değil, binanın kendisidir. Yapının fuayesine dönüşen parkın enerjisi binayı, binanın enerjisi ise parkı beslemektedir.
NEVŞEHİR ÜRGÜP MÜZESİ
- Proje Yeri: Ürgüp, Nevşehir
- Proje Tarihi: 2015
- Toplam İnşaat Alanı: 1,283.8 m²
- İşveren: T.C. Kültür Ve Turizm Bakanlığı – Kültür Varlıkları ve Müzeler Genel Müdürlüğü, Kayseri Rölöve ve Anıtlar Müdürlüğü
- Mimari Proje: Hazan Mimarlık
- Statik Projesi: Mimar Sinan Mühendislik - Sabri Kuşçu
- Mekanik Projesi: MTD Mühendislik - Abdullah Öcal
- Elektrik Projesi: ENB Mühendislik - Birkan Yüksek
- Peyzaj Projesi: Promim Proje - Selami Demiralp
- Teşhir - Tanzim Projesi: Teati Mimarlık - Gizem Erkaya, Betül Koç
PROJE METNİ
Nevşehir Ürgüp Müzesi bölgedeki kamu yapıları arasında merkezi bir konuma sahip, Mehmet Akif Ersoy Parkı’na ait arazi içerisinde yer almaktadır. Mevcut park alanının aktif kullanıma sahip bir mevkide olmasına karşın mevcut müze ve turist informasyon binalarının park ile mekânsal bütünlüğünün güçlendirilmesi gerekliliği projenin şekillenmesindeki temel unsurlardan biri olmuştur. Proje kapsamında önerilen yapı bir ‘Saçak’ yapıdır. Yapının zemini boşaltılarak bina bir saçağa dönüştürülmüştür. Bu saçak eklenti bir saçak elemanı değil, binanın kendisidir. Yapının fuayesine dönüşen parkın enerjisi binayı, binanın enerjisi ise parkı beslemektedir.
NEVŞEHİR ÜRGÜP MÜZESİ
- Proje Yeri: Ürgüp, Nevşehir
- Proje Tarihi: 2015
- Toplam İnşaat Alanı: 1,283.8 m²
- İşveren: T.C. Kültür Ve Turizm Bakanlığı – Kültür Varlıkları ve Müzeler Genel Müdürlüğü, Kayseri Rölöve ve Anıtlar Müdürlüğü
- Mimari Proje: Hazan Mimarlık
- Statik Projesi: Mimar Sinan Mühendislik - Sabri Kuşçu
- Mekanik Projesi: MTD Mühendislik - Abdullah Öcal
- Elektrik Projesi: ENB Mühendislik - Birkan Yüksek
- Peyzaj Projesi: Promim Proje - Selami Demiralp
- Teşhir - Tanzim Projesi: Teati Mimarlık - Gizem Erkaya, Betül Koç
PROJE METNİ
Nevşehir Ürgüp Müzesi bölgedeki kamu yapıları arasında merkezi bir konuma sahip, Mehmet Akif Ersoy Parkı’na ait arazi içerisinde yer almaktadır. Mevcut park alanının aktif kullanıma sahip bir mevkide olmasına karşın mevcut müze ve turist informasyon binalarının park ile mekânsal bütünlüğünün güçlendirilmesi gerekliliği projenin şekillenmesindeki temel unsurlardan biri olmuştur. Proje kapsamında önerilen yapı bir ‘Saçak’ yapıdır. Yapının zemini boşaltılarak bina bir saçağa dönüştürülmüştür. Bu saçak eklenti bir saçak elemanı değil, binanın kendisidir. Yapının fuayesine dönüşen parkın enerjisi binayı, binanın enerjisi ise parkı beslemektedir.